Caractéristiques :
Les actionneurs de commutation KNX de la série 20A sont utilisés pour contrôler les charges de commutation, telles que l'éclairage, le contrôle des rideaux, etc. avec une fonction de maintien magnétique.
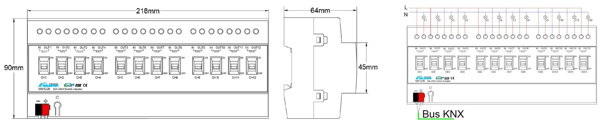
Le courant de charge maximal délivré par chaque actionneur 20A est de 20 ampères. Chaque circuit peut contrôler indépendamment le commutateur de lampes de 3300W, uniquement pour les lampes à charge résistive. Il serait plus approprié de conduire la charge résistive à 80% de la puissance dans l'utilisation réelle.
Pour les charges inductives et les charges capacitives, en particulier dans le cas de plusieurs lampes connectées en parallèle, la charge qui peut être supportée sera réduite. Bien que la puissance reste inchangée, le courant d'impact instantané augmente, ce qui fait facilement fondre les contacts du relais. Par conséquent, pour la charge inductive et la charge capacitive, il est généralement approprié d'utiliser 1/5 ou 1/6 du courant maximum, et même certaines charges de lampes LED de qualité inférieure doivent utiliser 1/8 du courant maximum.
Le relais est doté d'un cadran de commande manuelle avec fonction de maintien magnétique.
Les actionneurs de commutation 20A à 4 et 6 canaux ont une interface d'entrée à contacts secs à 2 voies, les actionneurs 20A à 8/12 canaux ont une interface d'entrée à contacts secs à 4 voies.
La distance de communication du câblage est de moins de 10m.
Pour faciliter l'installation dans le coffret de distribution, il est conçu comme un dispositif d'installation modulaire qui peut être monté sur un rail DIN de 35mm.
Le système est installé avec d'autres modules connecté via le bus EIB/ KNX.
Le logiciel ETS (version ETS4.0 ou supérieure) permet d'effectuer la programmation, l'attribution de l'adresse physique et le réglage des paramètres.
Le fichier de programmation ETS est en anglais.
Ses fonctions :
●Possibilité de contrôler indépendamment les lumières/charges de 4, 6, 8 ou 12 circuits, suivant le nombres de canaux choisis.
●Avec cadran de coupure forcée manuelle.
●Avec fonction de maintien magnétique du relais.
●Fonction de temporisation marche/arrêt.
●Fonctions de temporisation et d'interrupteur de cycle.
●Fonctions de préservation et de restauration sur site.
●Fonctions d'interrogation de la valeur d'état et de réponse.
●Fonction de sélection de l'état de commutation du relais après une coupure d'alimentation du bus et un rétablissement de la tension.
●Contrôle de combinaison de scènes et d'apprentissage de scènes.
●Fonction d'opération logique.
●Fonction de détection de l'état en temps réel.
●Fonction de verrouillage de groupe et de verrouillage de canal.
●Enregistrement du nombre d'opérations de relais.
●Dispose d'une interface d'entrée à contacts secs E/S, qui peut entrer des commandes de contrôle telles que des interrupteurs, des rideaux, des gradations, des scènes, etc. et peut relier directement l'éclairage de secours.
Prix : envoyez-nous un message à contact@world-led-france.com ou via le formulaire de la page contact.
Dimensions : Branchement :
Modèle MR0420
Modèle MR0820 (mêmes dimensions pour le modèle MR0620)

Modèle MR1220







